17年時,一直有位客人,期初是冶金機械的油缸,使用的是我們漢力達液壓缸,后來經常跟我們聊他們鋼廠一臺正在服役的鋁合金冶金機械的液壓問題,客人經常詢問我們關于冶金工程機械液壓站方面的問題。客人主要是服務鋼廠的,陸陸續續有些小單在合作著。19年1月聯系我們,鋼廠的一臺冶金設備上的液壓系統老化,需要更新,提供了液壓系統的原理圖和對應的實物照片給我們,說只要價格差得不多,只找我們,質量放心。
.jpg)
漢力達液壓的技術人員查看了資料后,發現原理圖和實物有出入,經過與客人的溝通,因為客人對液壓行業不是非常精通,他也沒法確認。我們決定結合原理圖和實物,形成我們的推測方案,然后先做初步的方案和報價。客人收到價格和基本配置后,馬上報給了鋼廠,初步溝通后,已形成合同意向。2月份,我們與客人簽訂了合同,并附上初步的方案、配置。客人安排了定金,收到定金后,營銷中心馬上下單給技術部,技術人員去現場,對照原理圖進行實地校驗,并且與鋼廠技術人員做深度溝通,對原理圖進行修正。漢力達液壓技術人員返廠時,我們也拿到了鋼廠修正后的原理圖,技術部重新出具了方案和具體配置表,并出了液壓站外形三維圖給客人確認。
.jpg)
(1).jpg)
.jpg)
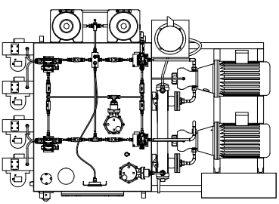
三維圖確認后,營銷中心把生產任務單正式下達各個部門,采購部、制造部、液壓裝配車間、品質部,各司其職開始為訂單服務。4月份液壓系統進入了最終的裝配、測試階段,我們拍了測試視頻、液壓站的各個角度給客人確認,客人確認后,我們馬上安排包裝發貨事宜。
.jpg)
.jpg)
最終5月初液壓站順利驗收,應用到了鋼廠的冶金設備上。客人表示,幸虧遇到了我們,足夠專業,不然沒有圖紙這些輔助,他夾在中間的溝通工作太多了。
相關文章:》液 壓 站 液 壓 成 套 系 統 使 用 步 驟

